Skip to content
Home
projekte
Bauten
Städtebau
Planung
Wettbewerbe
Büro
Profil
Referenzen
Kontakt
lüttin
architekten
bda konstanz
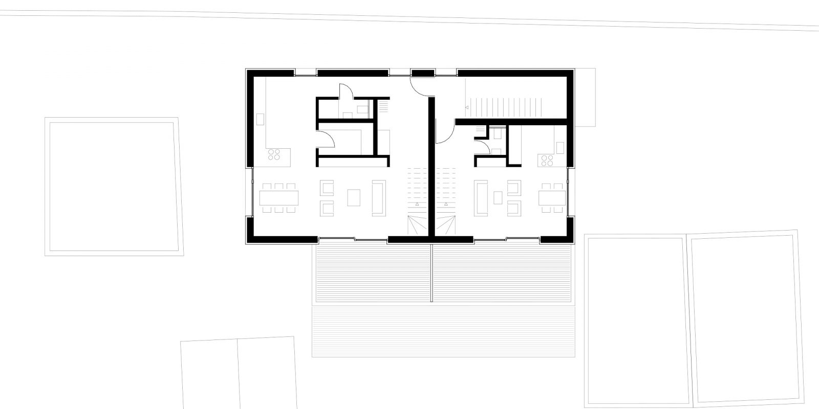
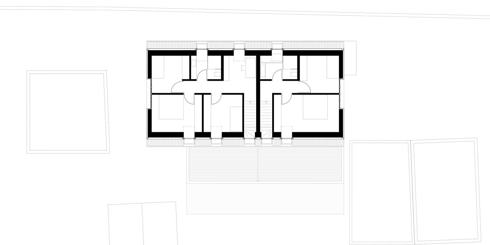
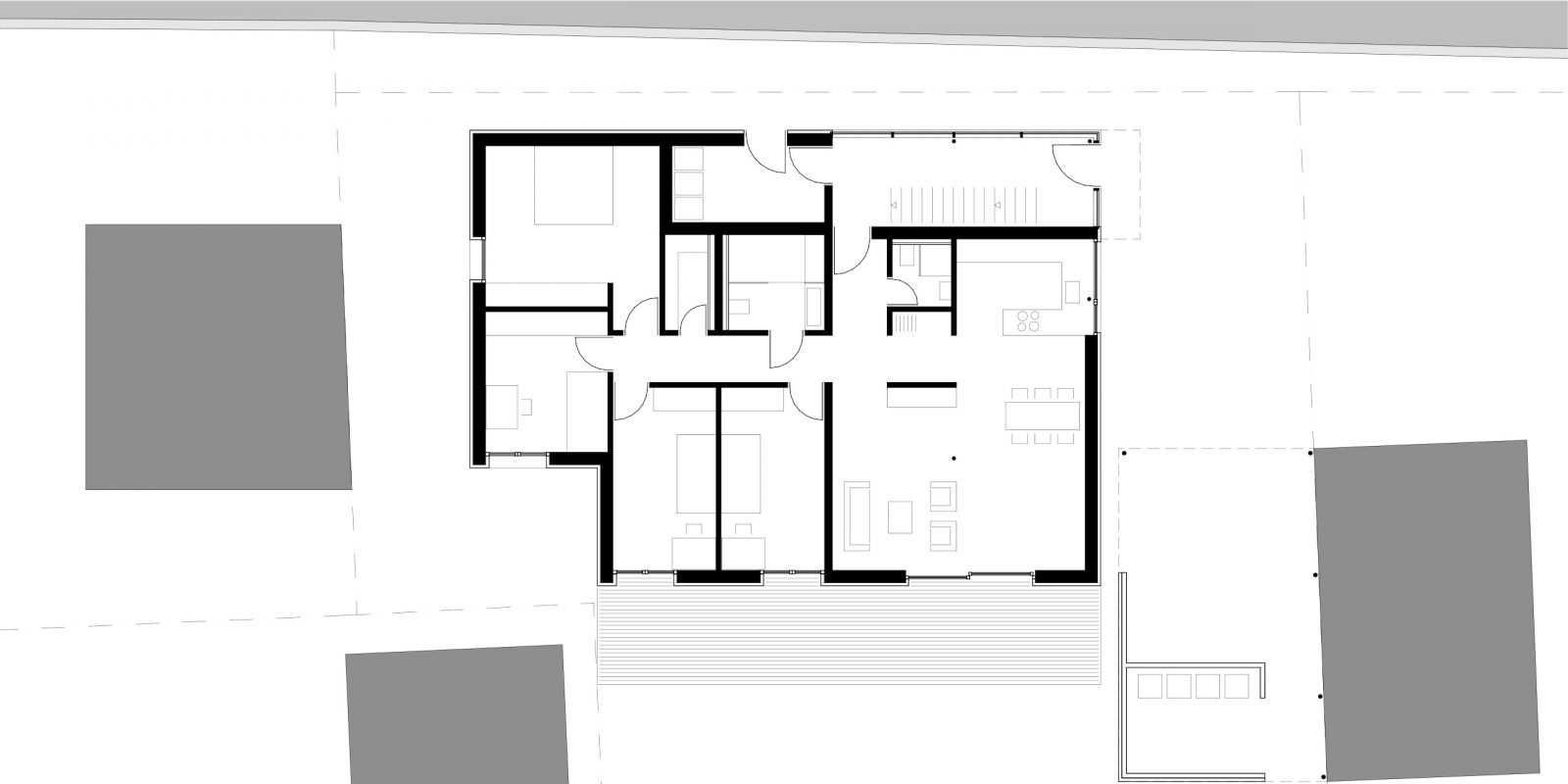
mehrfamilienhaus . langenargen
Fertigstellung 2025
Diese Website benutzt Cookies. Wenn du die Website weiter nutzt, gehen wir von deinem Einverständnis aus.
OK