kindertagesstätte . dogern

12.25

Nachdem bereits im Jahr 2023 das neue Feuerwehrhaus am Ortseingang von Dogern fertiggestellt worden war, entstand zwei Jahre später das Gebäude für eine sechsgruppige Kindertagesstätte in der unmittelbaren Nachbarschaft.

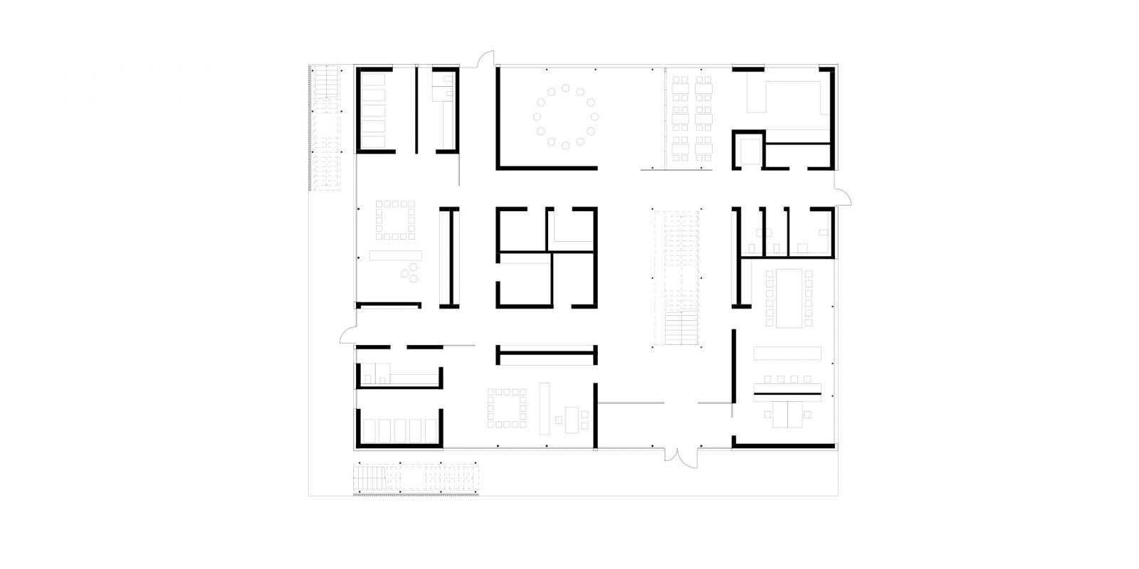
Die großzügig gestaltete Eingangshalle, über die der kubische Baukörper erschlossen wird, verbindet als zentraler Erschließungs- und Verteilerraum alle Bereiche des zweigeschossigen Gebäudes miteinander.

Im Erdgeschoss befinden sich zwei U3-Gruppenräume, die jeweils über vorgelagerte Terrassen direkten Zugang zum Spiel- und Außenbereich haben. Ergänzt wird diese Ebene durch einen Mehrzweckraum mit flexibel zuschaltbarem Bistro sowie den Verwaltungsbereich.

Im Obergeschoss befinden sich vier Ü3 Gruppencluster, die windmühlenartig in alle vier Himmelsrichtungen ausgerichtet sind. Jedes Cluster umfasst einen großzügigen Gruppenraum, der durch ein raumtrennendes Möbel mit integrierten Staumöglichkeiten und Sitznische vom Kleingruppenraum abgeteilt ist. Zusätzlich steht pro Cluster ein weiterer Raum zur Verfügung, der je nach Bedarf als Ruhe- oder Intensivraum genutzt werden kann.
Mittelpunkt im Obergeschoss ist die zentrale Treppenhalle, in der auch eine Bibliothek verortet ist.

Zur Verbesserung des sommerlichen Wärmeschutzes ist an der Südost- und Südwestseite eine vorgelagerte Laube angeordnet, die sowohl als Spielfläche dient als auch den Zugang zum Außenbereich ermöglicht.

Der gesamte Neubau wurde in Holzrahmenbauweise errichtet, die Dämmung der Außenwände besteht aus Zellulose. Die Außenhaut ist mit einer Bekleidung aus sägerauen, naturbelassenen Weißtannenhölzern verschalt, die überdachten Eingangsbereiche mit Weißtanne-Dreischichtplatten bekleidet.