kindergarten . salem

arge hack · lüttin     09.23

auszeichnung „beispielhaftes bauen“ bodenseekreis, 2018-2024

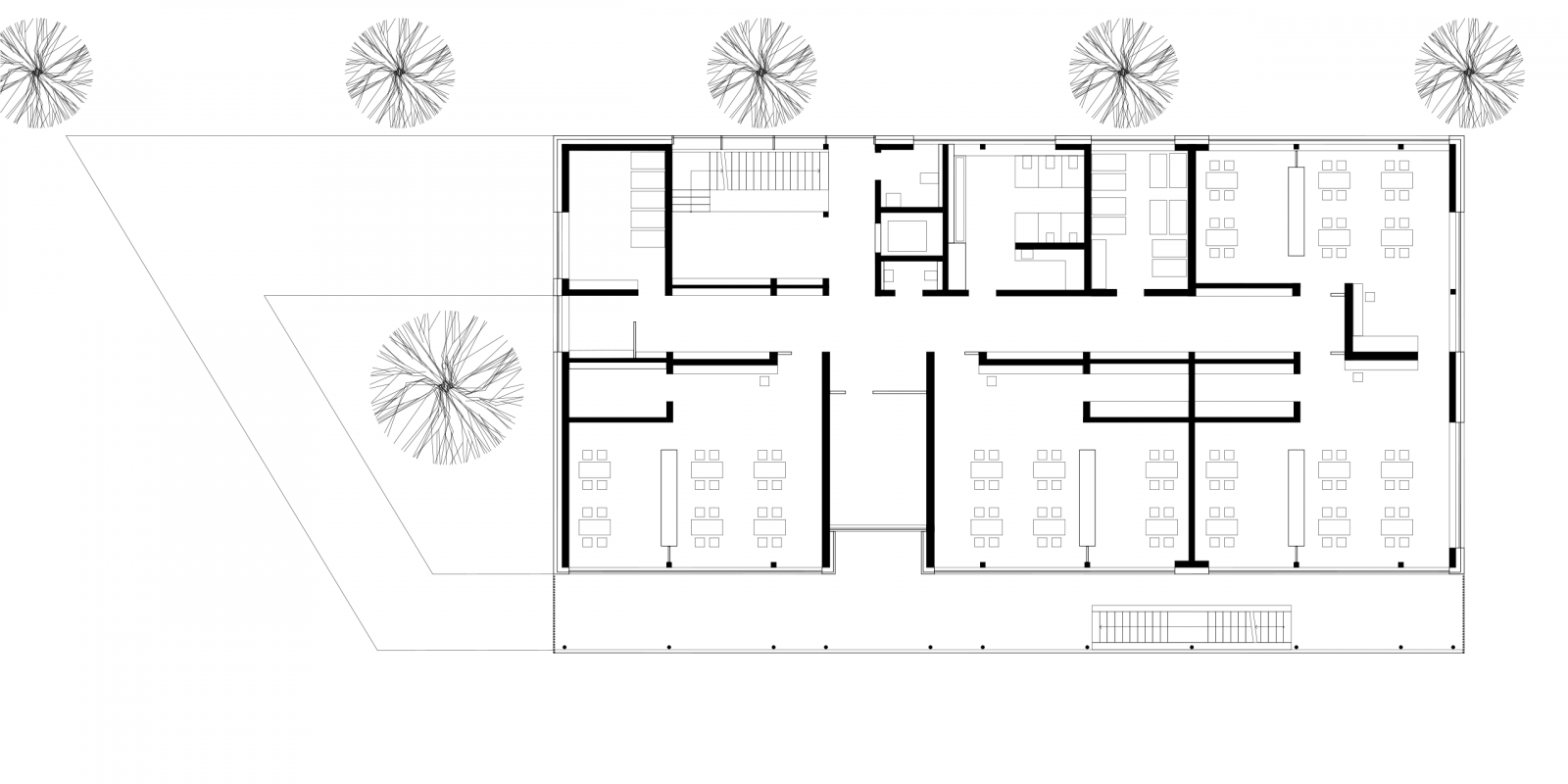
der neubau des kindergartens in salem-stefansfeld wird als dreigeschossiger kubischer baukörper errichtet, dessen trapezförmiger vorplatz mit zugehörigem nebengebäude sich an der grundstücksform orientiert. ein überdachter weg verbindet das eingeschossige nebengebäude mit dem hauptgebäude. über eine transluzente holzlattenstruktur erhält man dort einblicke in den innenhof und das bistro.
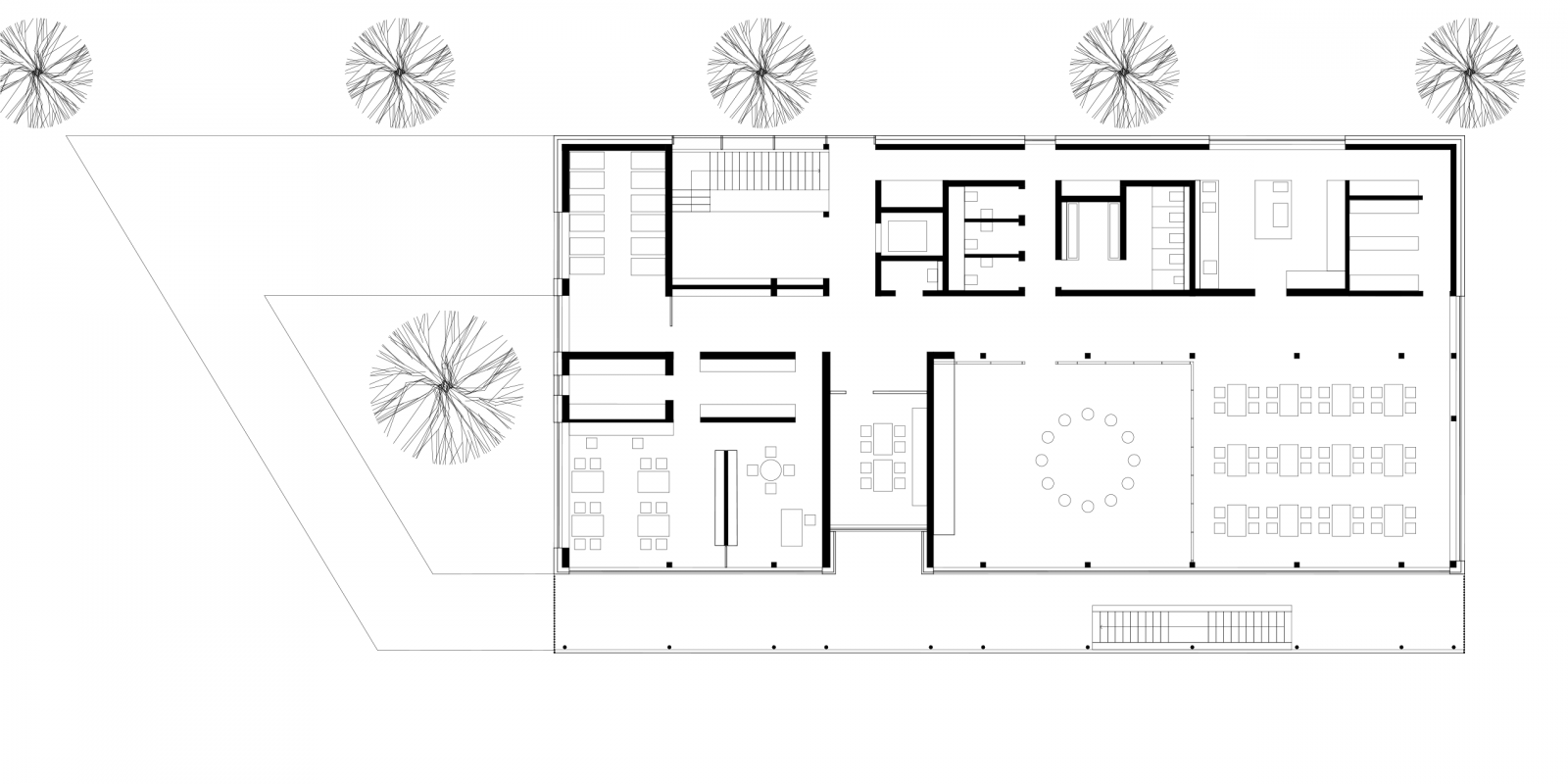
während im erdgeschoss die räume für die unter 3-jährigen kinder angeordnet sind, befinden sich im obergeschoss die gruppenräume für die älteren kinder. die gruppen bestehen alle jeweils aus einem großen gruppenraum und einem kleingruppenraum, die sich durch ein raumtrennendes möbel voneinander abgrenzen.
im dachgeschoss ist neben dem personalbereich ein großer ess- und mehrzweckraum verortet.

auf der zur straße abgewandten westseite gibt es über alle drei geschosse einen laubengang, der einen zugang von den vollverglasten gruppen- und verwaltungsräumen und vom mehrzweckraum aus nach draußen ermöglicht.

der neubau des kindergartens wurde in holz-beton-hybridbauweise ausgeführt. sichtbetonelemente im erdgeschoss und eine holzleistenstruktur in den oberen geschossen bieten einen kontrast zueinander und gliedern die fassade.
im inneren sorgen holzdreischichtplatten aus weißtanne an den wänden und holzakustikpaneele an den decken für eine warme atmosphäre.